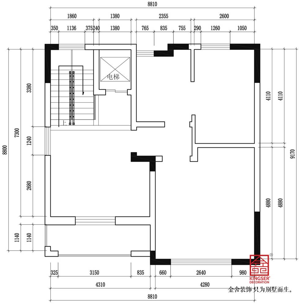
面積:365平米
設計師:杜海國


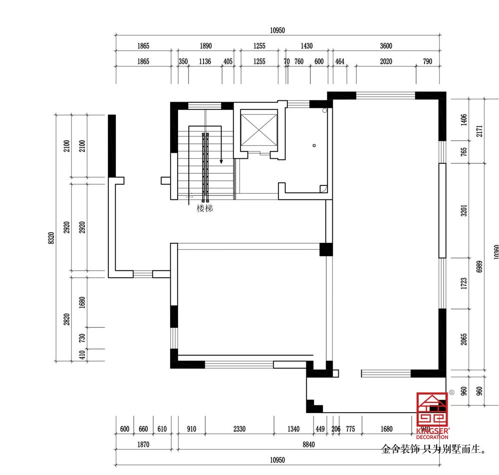
① 戶型方正、南北通透、三面采光,正如清風婉轉,陽光留戀。
?、凇」δ軇澐置鞔_。入戶玄關,客廳、廚房與餐廳與觀景陽臺相連,空間光線明媚,清風徐徐。
缺點:
?、邸】蛷d空間較小,占位比較尷尬。
④ 剩余空間窄長
改造:
?、佟⒄L空間合理利用劃分為中西廚。廚房餐廳南北相連,就餐、使用便利。就餐同時可以觀景。
② 將玄關走廊,客廳與餐廳相連弱化空間劃分,增大客廳感官上的空間擴大化。


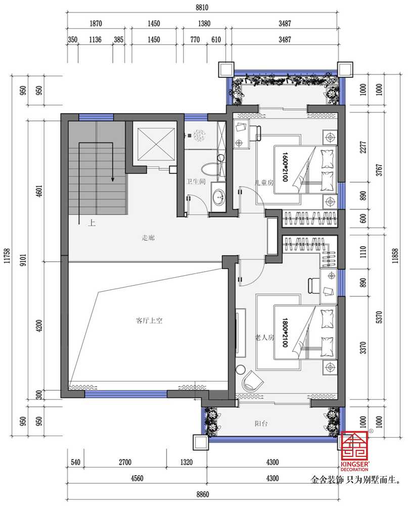
② 功能劃分明確,兩個臥室自帶陽臺,增加生活景致。
缺點:
?、邸£柵_窄小,臥室空間分布不均
?、堋∨P室陽臺窗窄小。
改造:
① 打通了臥室陽臺門窗,改為推拉門,增加了臥室的采光度
?、凇£柵_進行綠植美化,可作為私人的綠色空間增添喜歡的綠植。


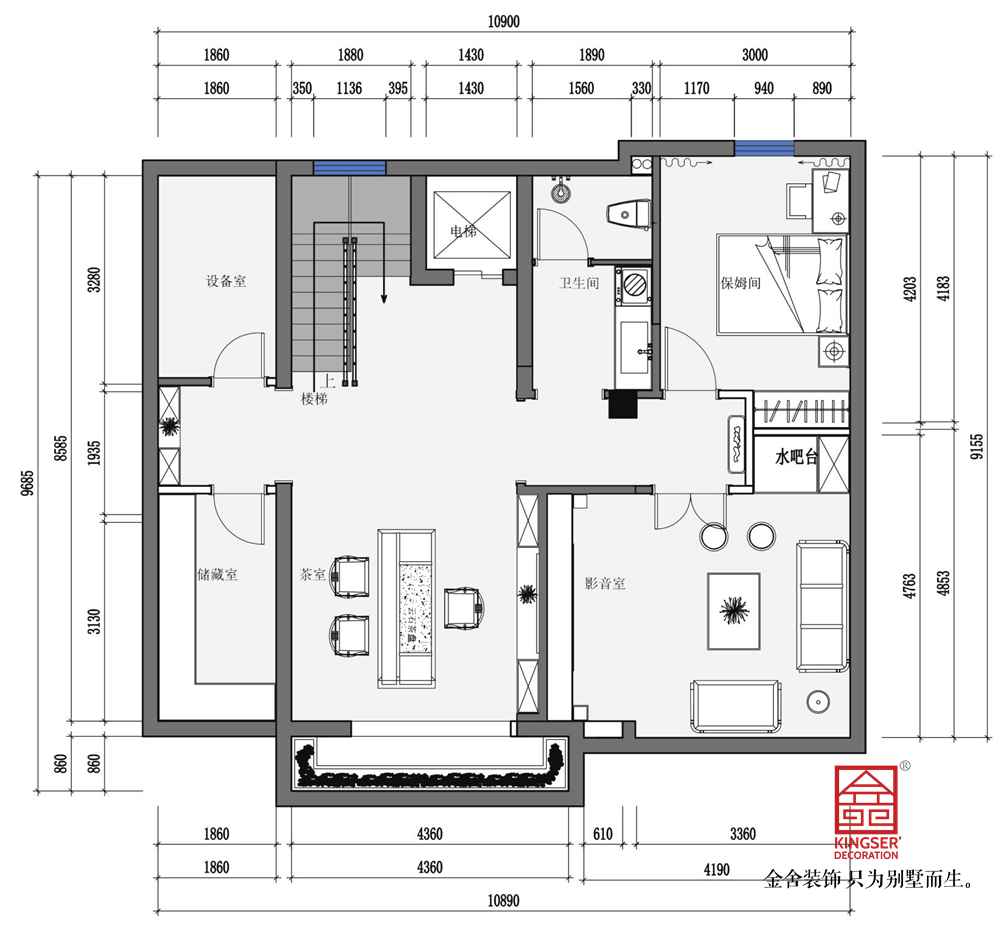
三樓戶型優(yōu)點:
① 南北通透,采光通透,通風良好
?、凇∠噍^與二樓有了一個公共空間,同時連接陽臺。
缺點:
③ 功能區(qū)域劃分不明確。
?、堋】臻g部分浪費
改造:
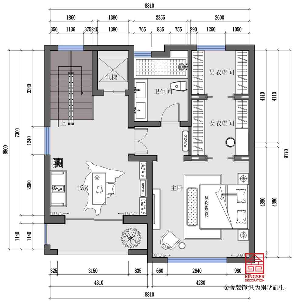
① 豪華套件,區(qū)域劃分明確,動靜分離,衣帽間與衛(wèi)生間分離。
?、?衣帽間劃分為男士衣帽間與女士衣帽間。增加私密性,


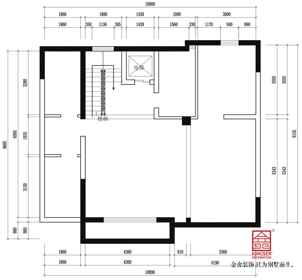
缺點:
?、凇〔晒獠睿L局部差。
改造:
① 合理利用采光通風好的進行設為保姆房.
?、凇±貌晒獠蛔阍黾佑耙羰摇:侠砝貌晒馀c通風將天井附近區(qū)域劃分為茶室。